Das Biotechnologie Zentrum (BTZ) im Technologiepark Tübingen wurde durch einen Neubau des Architekturbüros Riehle Koeth ergänzt. Der schlanke Gebäuderiegel tritt funktional und formal in Dialog mit dem Bestand und der benachbarten Sternwarte.
In der Tübinger Nordstadt, nahe dem Universitätsklinikum und den Max-Planck-Instituten, entwickelt sich der Technologiepark Tübingen zu einem gefragten Standort für Unternehmen aus der Bio-, Nano-, Medizin- und Informationstechnologie. Das zentral gelegene Biotechnologie-Zentrum, in dem die immatics Biotechnologie GmbH bereits seit 2004 Mieter ist, erhielt, beauftragt von der Karl Schlecht Stiftung, einen Erweiterungsbau, Er schafft mit über 2.300 m² Bürofläche Raum für die medizinische Forschung und wissenschaftliche Veranstaltungen im neuen Foyer- und Konferenzbereich. immatics gehört mit über 500 Mitarbeitenden – davon ca. 250 in Tübingen – zu den wichtigsten deutschen forschenden Unternehmen im Bereich der Krebstherapien. Sie hat als Start-Up eine Marktkapitalisierung von mehr als einer Mrd. US-Dollar erreicht und gehört damit zu den wenigen sogenannten Einhörnern im Bereich der medizinischen Forschung in Deutschland, wie bei der Einweihung des Neubaus betont wurde. Der Forschungsschwerpunkt liegt auf der Weiterentwicklung der Immunzellen-Therapie (T-Zellen), die eine zukunftsweisende Methode der Krebsbekämpfung ist.
Getrennt und doch verbunden
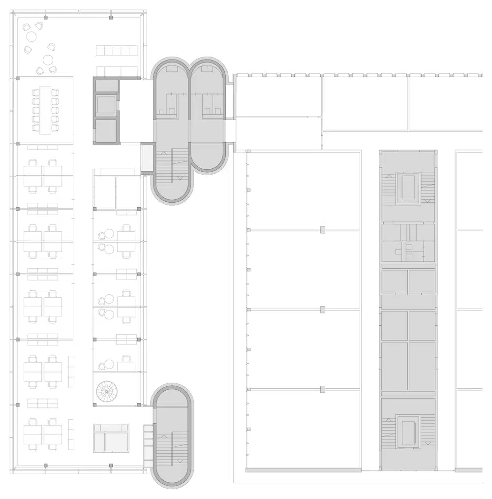
Das begrenzte Baufenster und die Lage am „Platz an der Sternwarte“ stellten eine Herausforderung für das Architekturbüro Riehle Koeth dar, das mit der Planung des Neubaus beauftragt wurde. Beide Hürden boten aber auch Chancen für eine innovative Erweiterungsstrategie. Durch einen schlanken Gebäuderiegel mit ausgelagerten Infrastrukturkernen werden Bestand und Neubau funktional und gestalterisch verbunden. Das Konzept schafft optimale Tageslichtbedingungen, einen geschützten Hofbereich und einen eigenständigen Baukörper als neue Platzkante. Die runde Formensprache der Infrastrukturkerne nimmt Bezug auf die benachbarte Sternwarte, während der aus gestapelten, flexiblen Plattformen konzipierte Gebäuderiegel mit ruhiger Fassadengliederung und abgestimmter Farbgebung eine Verbindung zum Bestand sucht. Am Kopf öffnet sich die Fassadengliederung bewusst, um mit einem großzügigen Foyer eine markante Eingangsgeste zu schaffen. Eine Café-Bar sorgt für eine offene Verbindung zum neu gestalteten Platz.
Fassade mit außenliegendem Sonnenschutz
Die transparente Fassade des viergeschossigen Neubaus, für deren Planung Werner Sobek verantwortlich zeichnet, basiert auf einer Rasterstruktur aus vertikalen und horizontalen Rahmen mit einem außenliegenden textilen Sonnenschutz. Opake Bereiche werden durch eine gelochte Aluminiumwelle gebildet, welche gleichzeitig die Ansaugöffnungen von dezentralen Lüftungsgeräten kaschiert. Als Lüftungsflügel ordneten die Planer ein Oberlicht an, um im transparenten Fassadenteil auf Augenhöhe keine störenden Elemente zu erhalten. Im Übergang zum Bestandsgebäude befinden sich zwei halbrunde Treppenhauskerne als Freiformen, die ebenfalls mit einer Aluminiumwelle verkleidet wurden.
Lohnendes Engagement
Nach der Würdigung des Projekts durch die Architektenkammer Baden-Württemberg im Rahmen des Verfahrens „Beispielhaftes Bauen“ freuen sich Riehle Koeth über eine abermalige Bestätigung ihres konzeptionellen Anspruchs. Das Gebäude erhielt im Juli 2025 eine Auszeichnung im best architects 26 award.
Der Artikel ist in der industrieBAU-Ausgabe Dezember/Januar 2025/2026 erschienen. Sichern Sie sich jetzt ein kostenloses Test-Abo.
